Theresienstrasse 19

Generationenübergreifendes Wohnen im Gründerzeitviertel

In Kooperation mit dem Freien Altenring Schweinfurt e. V. setzt die Stadt- und Wohnbau GmbH Schweinfurt ein Projekt zum generationenübergreifenden Wohnen um. Die SWG investiert rund 3,9 Mio. € in die Modernisierung des Bestandsgebäudes in der Theresienstraße 19, im Gründerzeitviertel. Das Projekt wird mit Fördermitteln aus dem Bayerischen Modernisierungsprogramm umgesetzt. Durch die energetische Sanierung der Gebäudehülle entsteht ein KfW 55 Energieeffizienzhaus.

Mit dem Projekt „Generationenübergreifendes Wohnen - Selbstbestimmt im Alter“ führt die SWG ihre Kooperation mit dem Freien Altenring Schweinfurt e. V. fort und geht mit der Modernisierung der Theresienstraße 19 einen Schritt weiter: Neben Senioren können auch Familien in die modernisierten Wohnungen einziehen. Die Voraussetzung hierfür sind neben einem Wohnberichtigungsschein auch die Mitgliedschaft im Freien Altenring Schweinfurt e. V.

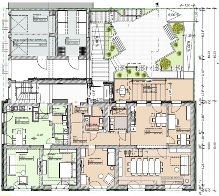
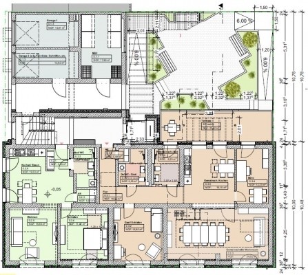
Durch die Modernisierung entstehen 13 barrierefreie, öffentlich geförderte Mietwohnungen, mit Balkon und Aufzug. Die Wohnungsgrößen liegen zwischen ca. 64 m2und 108 m2. Im Erdgeschoss wird neben einem großen Gemeinschaftsaufenthaltsraum mit Balkon auch ein Gästezimmer geschaffen. Auch der Innenhof wird durch Sitzmöglichkeiten und Bepflanzungen neu gestaltet und aufgewertet.

Die Bauarbeiten beginnen im Herbst 2020; die Fertigstellung der Baumaßnahme ist für Mai 2022 geplant.

Sollten Sie Interesse an der Anmietung einer Wohnung haben, wenden Sie sich gerne an uns.