Ludwigstraße[nbsp]31

Die Stadt- und Wohnbau GmbH Schweinfurt baut im Gründerzeitviertel 14 öffentlich geförderte Wohnungen. Das Projekt wird mit Fördermitteln aus dem Bayerischen Wohnungsbauprogramm umgesetzt. Durch die Niedrigenergiebauweise als KfW Effizienzhaus 55 wird die geltende Energiesparverordnung um ca. 27 % unterschritten.

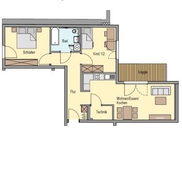
Im Zuge des Neubaus entstehen moderne 2-, 3-, und 4-Zimmer-Wohnungen mit Loggien und barrierefreiem Zugang. Alle Wohnungen sind über einen Aufzug zu erreichen.

Die Fertigstellung des Projekts ist für Winter 2020 geplant. Zur Anmietung einer Wohnung wird ein Wohnberechtigungsschein benötigt.

Sollten Sie Interesse an der Anmietung einer Wohnung haben, wenden Sie sich bitte an unser Vermietungsteam